Продам помещение свободного назначения 49.5 м.кв.

на карте
Объявление в архиве
879 000 руб.
на 86% дешевле похожих объектов ?
Краснодар , Кирова улица, д.58
Яна СБЕРБАНК АСТ
Контактные данные скрыты, так как объявление находится в архиве
Данные актуальны на 24.09.2025
Пожаловаться на объявление
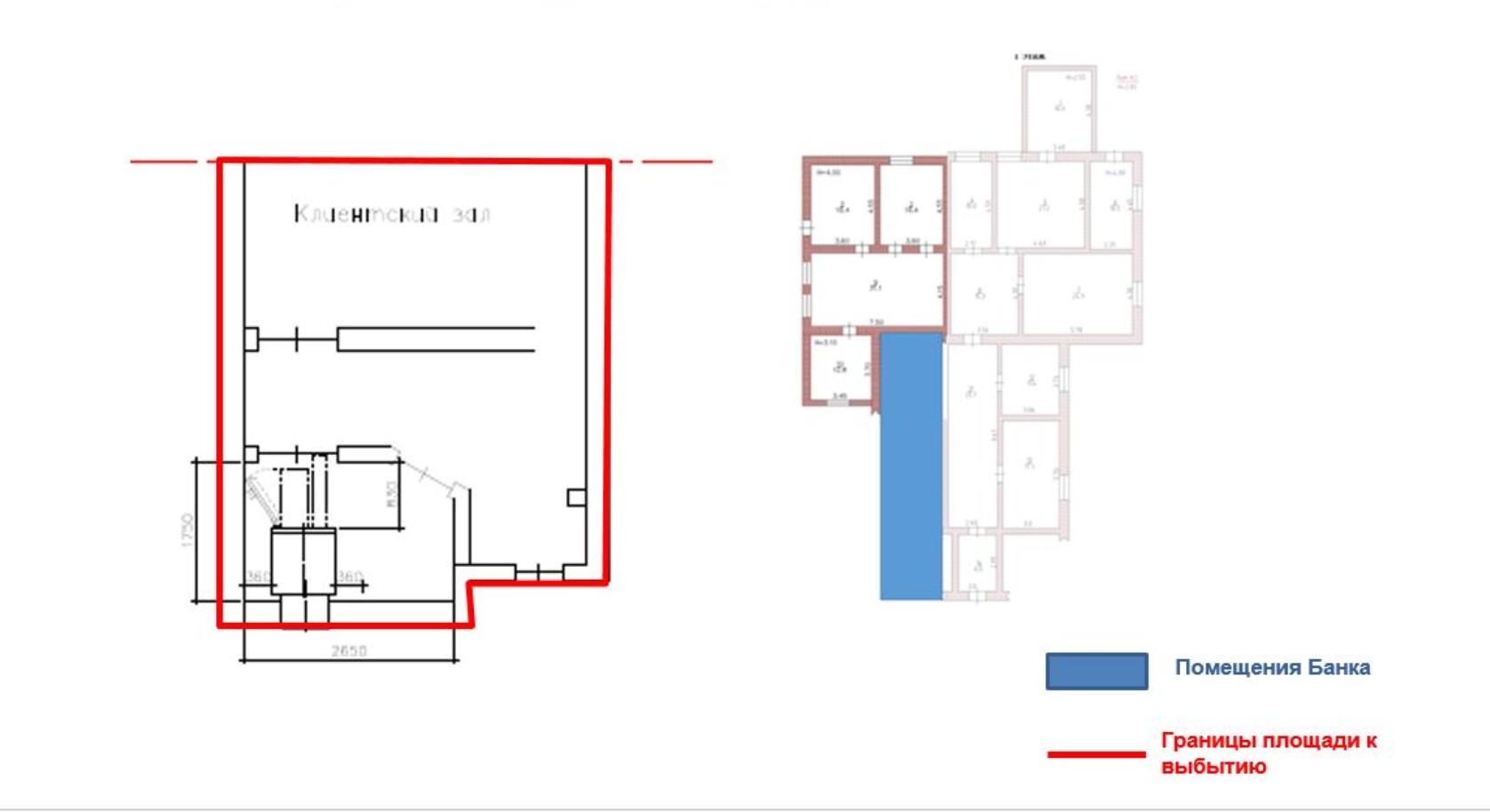
Сбер А предлагает к реализации помещение площадью 49,5 кв. м., расположенного по адресу: Россия, Краснодарский край, Кущевский район, с. Красное, ул. Кирова, дом № 58 Продажа посредством проведения торгов на электронной площадке Сбербанк-АСТ. Номер процедуры: SBR065-2509170010 Собственник: Юго-Западный Банк ПАО Сбербанк О лоте: Нежилое помещение площадью 49.50 кв.м Этажность: 1 Кадастровый номер: 23:17:1302013:507 Обратная аренда: нет Особые условия: На объекте располагается ПАО Сбербанк ВСП № 8619/0879, дата закрытия офиса 26.09.2025г., остальные условия в "Аукционной документации". Дополнительная информация, документы и условия реализации указаны на площадке в разделе «Документы». По всем вопросам, связанным с лотом, обращайтесь в рабочее время по телефону с 09:00 до 18:00 по МСК.

Дополнительная информация

Тип здания Торговый центр Этаж 1 Этажность 1 Количество комнат - Вход Общий Ремонт С ремонтом
Интернет - Кондиционер - Вентиляция - Пожарная сигнализация - Красная линия -
Объекты, находящиеся поблизости
Банки, банкоматы
Сбербанк 11м
Столовые, кафе
Кафе 159м
Медучреждения
Пульс 258м
Динамика изменения цен на рынке недвижимости ?

По городу Краснодар, в категории Универсальные помещения
За последние полгода средняя сумма за кв.м. уменьшилась на 416 руб. Колебание цен происходило от 126702 руб. до 127224 руб. На текущий момент наблюдается тенденция к уменьшению цены.
Похожие объявления
Обновлено
04.02.2026
Фотографии
6
Объявление 733027
Краснодар, им. краеведа Соловьёва В.А. улица, д.6
6 200 000
руб. Продажа
48.4 м2
Вход в личный кабинет