Продам помещение свободного назначения 175.5 м.кв.

Просмотров 36
3 853 600 руб.
на 83% дешевле похожих объектов ?
Краснодар , Клубный переулок, д.9
Яна СБЕРБАНК АСТ
Показать телефон
Данные актуальны на 12.01.2026
Пожаловаться на объявление
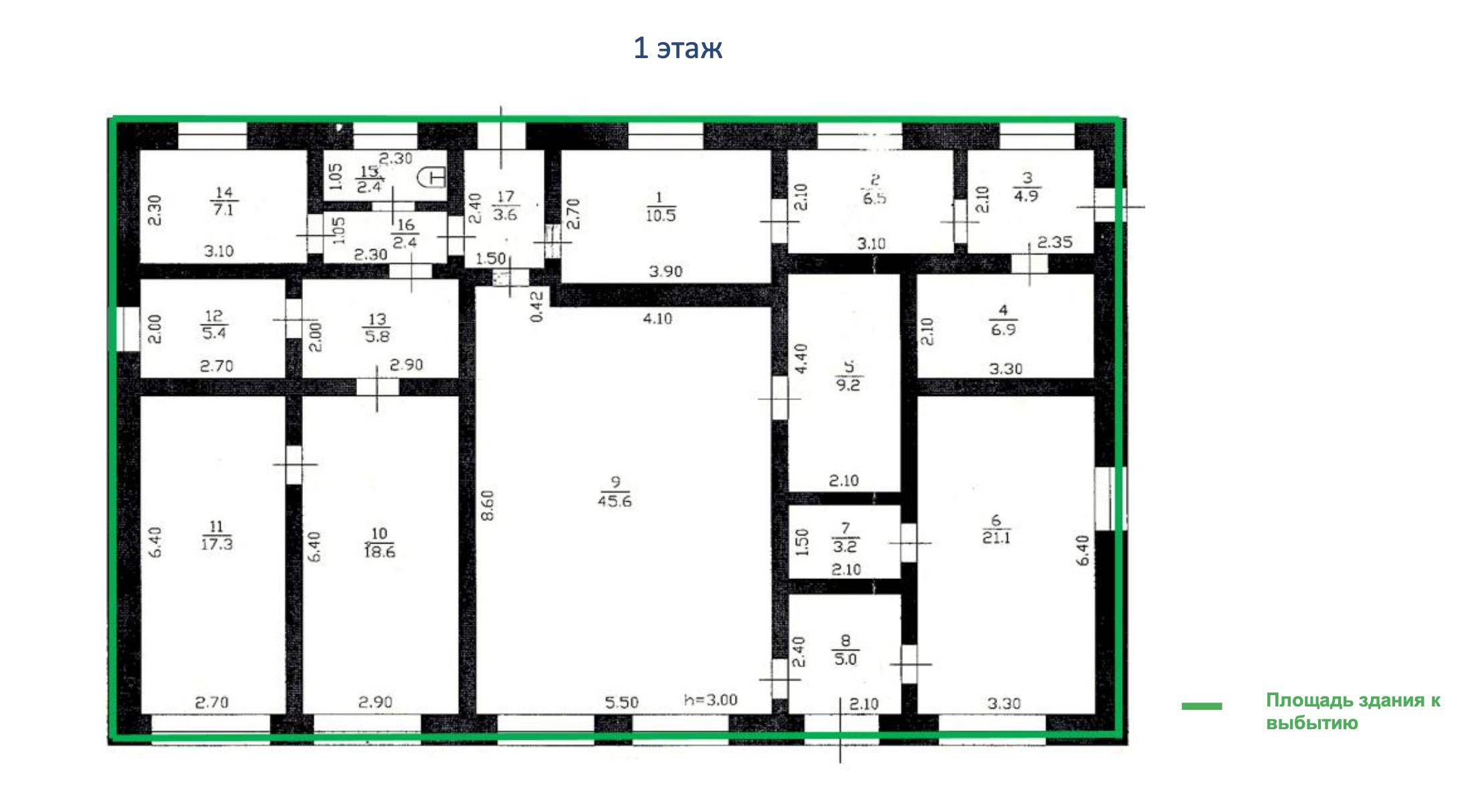
Сбер А предлагает к реализации нежилое помещение площадью 175,5 кв.м. и земельного участка площадью 1754 кв.м., расположенных по адресу: Краснодарский край, р-н Каневской, с/п Красногвардейское, п. Красногвардеец, пер. Клубный, д. 9 Продажа посредством проведения торгов на электронной площадке Сбербанк-АСТ. Номер процедуры: SBR065-2510090009 Собственник: Юго-Западный Банк ПАО Сбербанк О лоте: Нежилое помещение общей площадью: 175,5 кв.м. Этаж: 1 Дополнительная информация, документы и условия реализации указаны на площадке в разделе «Документы». По всем вопросам, связанным с лотом, обращайтесь в рабочее время по телефону с 09: 00 до 18: 00 по МСК.

Дополнительная информация

Тип здания Торговый центр Этаж 1 Этажность 1 Количество комнат - Вход Общий Ремонт С ремонтом
Интернет - Кондиционер - Вентиляция - Пожарная сигнализация - Красная линия -
Объекты, находящиеся поблизости
Банки, банкоматы
Сбербанк 16м
Медучреждения
Амбулатория 98м
Динамика изменения цен на рынке недвижимости ?

По городу Краснодар, в категории Универсальные помещения
За последние полгода средняя сумма за кв.м. уменьшилась на 416 руб. Колебание цен происходило от 126702 руб. до 127224 руб. На текущий момент наблюдается тенденция к уменьшению цены.
Похожие объявления
Обновлено
28.01.2026
Фотографии
9
Объявление 725607
Краснодар, Ленина улица, д.2а
4 187 493
руб. Продажа
176.2 м2
Обновлено
23.12.2025
Фотографии
2
Объявление 731721
Краснодар, им. Гоголя улица, д.75
6 900 000
руб. Продажа
163 м2
Вход в личный кабинет